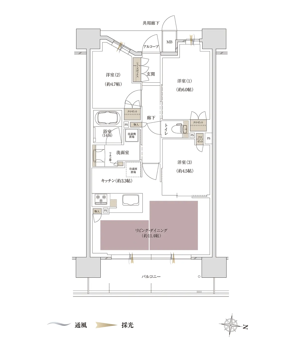
PLAN R TYPE
image photo
Rtype
3LDK
住居専有面積:
64.91㎡(約19.63坪)
バルコニー面積:11.16㎡(約3.37坪)
アルコーブ面積:3.75㎡(約1.13坪)

限定サイトをご覧いただくには
専用のパスワードが必要となります。
物件エントリーがまだの方は
下記よりご登録ください。
パスワードをお持ちの方は
こちらからログインください。
- ※掲載の写真は一部イメージです。
- ※掲載の図面は設計図を基に描き起こしたもので、官公庁の指導、施工上の都合等により多少変更になる場合があります。予めご了承ください。