The FINE Tower HACHIOJI The FINE Tower HACHIOJI

※1.設計変更受付にはエントリーフィーが必要になります。躯体やPSの変更を伴う変更はできません。変更内容には期限・制限がございます。また、不動産売買契約とは別に工事請負契約が必要となります。詳しくは係員にご相談ください。※2.高さセレクトによる収納量の変更はありません。※各オプションにはお申込み期限がございます。
※掲載のリビング・ダイニング(150P2type)完成予想CGは計画段階の図面を基に描き起こしたもので、形状・色等は実際とは異なり、今後施工上の理由等により計画に変更が生じる場合があります。
※家具・調度品・オプション等は販売価格には含まれません。建具や床材等の色調・柄は実際とは異なります。実際の色調・柄につきましては、マンションギャラリーでご確認ください。
※眺望等は住戸によって異なり、将来的に保証されるものではありません。
※掲載の眺望写真は、現地29階相当の高さより撮影(2025年7月)したのものにCG処理を施したもので、実際の眺望とは異なります。
※掲載の各完成予想CGは、計画段階の図面を基に描き起こしたもので、実際とは異なり、今後、行政指導や施工上の理由により変更が生じる場合があります。植栽は、特定の季節やご入居時の状態を想定して描かれたものではありません。樹種等変更になる場合があります。周辺道路・建物等は簡略化しております。雨樋、エアコン室外機、給湯器、TVアンテナ等再現されていない設備機器等がございます。家具・照明器具・調度品等は、実際に設置されるものと異なる場合があります。周辺の建物、電柱、架線等は一部簡略化、省略しております。今後、行政協議により変更になる場合があります。
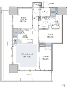
※掲載の間取り図面は計画段階の図面であり、今後変更になる場合がございます。
※掲載の眺望写真は現地29階、27階相当の高さから撮影(2025年7月)したものに加工をしたもので、眺望・景観は各階・各住戸により異なります。今後の周辺環境の変化に伴い、現在の眺望・景観は将来にわたって保証されるものではありません。また、一部現地周辺建物をCGにより制作・加工(一部簡易表現や省略)しており、形状・高さ・色は実際と異なる場合があります。
81F1 type
3LDK+WIC+SIC
専有面積81.70m²(約24.71坪)
バルコニー面積19.26m²(約5.82坪)
WIC:ウォークインクロゼット SIC:シューズインクロゼット
採光
通風
収納
床暖房
80L type
3LDK+WIC+SIC
専有面積80.62m²(約24.38坪)
バルコニー面積17.10m²(約5.17坪)
WIC:ウォークインクロゼット SIC:シューズインクロゼット
採光
通風
収納
床暖房
75A1 type
3LDK+WIC+SIC
専有面積75.41m²(約22.81坪)
バルコニー面積32.43m²(約9.81坪)
WIC:ウォークインクロゼット SIC:シューズインクロゼット
採光
通風
収納
床暖房
61C1 type
2LDK+WIC
専有面積61.52m²(約18.60坪)
バルコニー面積11.25m²(約3.40坪)
WIC:ウォークインクロゼット
採光
通風
収納
床暖房